
Несложный и остроумный механизм — гидравлический таран, не нуждаясь в источнике энергии и не имея двигателя, поднимает воду на высоту нескольких десятков метров. Он может месяцами непрерывно работать без присмотра, регулировки и обслуживания, снабжая водой небольшой поселок или ферму.
В основе работы гидротарана лежит так называемый гидравлический удар — резкое повышение давления в трубопроводе, когда поток воды мгновенно перекрывается заслонкой. Всплеск давления может разорвать стенки трубы, и, чтобы избежать этого, краны и вентили перекрывают поток постепенно.
Гидравлический таран работает следующим образом (рис. 1). Из водоема 1 вода по трубе 2 поступает внутрь устройства и вытекает через отбойный клапан 3. Скорость. потока нарастает, его напор увеличивается и достигает величины, превышающей вес клапана. Клапан мгновенно перекрывает поток, и давление в трубопроводе резко повышается — возникает гидравлический удар. Возросшее давление открывает напорный клапан 4, через который вода поступает в напорный колпак 5, сжимая в нем воздух. Давление в трубопроводе падает, напорный клапан закрывается, а отбойный — открывается, и цикл повторяется снова. Сжатый в колпаке воздух гонит воду по трубе б в верхний резервуар 7 на высоту до 10—15 метров.
Первый гидравлический таран построили в городе Сен-Клу под Парижем братья Жозеф и Этьен Монгольфье в 1796 году, через 13 лет после своего знаменитого воздушного шара. Теорию гидравличекого тарана создал в 1908 году Николай Егорович Жуковский. Его работы позволили усовершенствовать конструкцию этого устройства и повысить его кпд.

Гидравлический таран настолько прост, что его можно без труда изготовить самостоятельно, почти полностью собрав из готовых деталей, применяемых в водопроводных сетях. Недостающие детали требуют несложных токарных и сварочных работ.
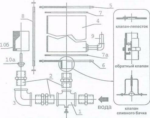
Основным элементом устройства (рис. 2) служит стальной или чугунный тройник 1 (а еще лучше — крестовое соединение, тогда четвертое, нижнее, отверстие закрывают резьбовой заглушкой) с внутренней резьбой 1 1/2 — 2 дюйма. В тройник ввинчивают переходные ниппеля («бочонки») 2 с длинной наружной резьбой — сгонами. К одному сгону подсоединяют подводящий трубопровод диаметром не менее 50 мм и длиной не более 20 метров. Ко второму подсоединяют колено (уголок) 3 так, чтобы при установке тарана его свободный торец был горизонтальным: на нем будет смонтирован отбойный клапан. На третьем ниппеле монтируют напорный колпак с клапаном. Все резьбовые соединения перед сборкой очищают металлической щеткой от грязи и ржавчины и обматывают паклей.
Напорный колпак 4 делают из отрезка металлической или пластмассовой трубы диаметром 15—20 сантиметров. Его объем должен быть примерно равен объему подводящего трубопровода. Торцы трубы закрывают крышкой 5 и переходным фланцем 6 с резиновыми прокладками 7 и 7а (кольцо). Колпак стягивают стальными шпильками 8.
Напорным клапаном может служить обратный клапан, выпускаемый для водяных насосов итальянской фирмой «Бугатти» (с внешней резьбой 1 1/2 дюйма) и немецкой фирмой «Ценнер» (диаметром от 15 до 40 мм) — они продаются в магазинах сантехнического оборудования, самодельный клапан-лепесток из куска листовой резины или сливной клапан от туалетного бачка. Конструкция клапана определит размеры и форму переходного фланца, место и способ крепления напорной трубы 9 диаметром 1/2 дюйма. Варианты конструкции показаны на рисунке.
Отбойный клапан собран из двух деталей: корпуса 10а и заслонки 106. Корпус вытачивают из стали или из бронзы. В верхней его части просверлено отверстие диаметром 15 — 20 мм. Внутренняя полость заканчивается конусом с углом порядка 45°. Корпус клапана навинчивается на сгон ниппеля 2. Стальная или бронзовая заслонка имеет форму двойного усеченного конуса диаметром 20—25 мм и массой 100 — 150 г. Верхний конус заслонки должен иметь тот же угол, что и полость корпуса: только тогда клапан сможет мгновенно перекрыть поток, создав гидравлический удар. В верхнюю часть заслонки ввернуты три центрирующие спицы так, чтобы они входили плотно, но без трения в верхнее отверстие корпуса. В нижнюю — ввернут винт. Настраивают гидравлический таран, меняя массу заслонки.
Для этого на нижний винт надевают свинцовые шайбы. Для запуска гидротарана достаточно приподнять заслонку, давая воде свободно вытекать через отбойный клапан.
Впускное отверстие подводящего трубопровода необходимо оборудовать простым фильтром, защищающим гидротаран от грязи, и заслонкой, перекрывающей воду на зиму. Чтобы слить воду из корпуса тарана и колпака, через нижнее отверстие вводят спицу, открывая ею напорный клапан. Гидравлический таран можно установить стационарно или сделать съемным, предусмотрев отводной канал для воды, текущей из отбойного клапана.
Производительность гидравлического тарана можно ориентировочно оценить по таблице. Она связывает отношение массы воды (m), поднятой гидротараном, к массе воды (М), поступившей из водоема, и отношение высоты подъема воды h к высоте Н ее падения к гидротарану.
| m/М | 0,3 | 0,2 | 0,15 | 0,1 | 0,06 | 0,05 | 0,03 | 0,02 | 0,01 |
| h/Н | 2 | 3 | 4 | 6 | 8 | 10 | 12 | 15 | 18 |
Пусть, например, к гидравлическому тарану поступает М = 12 л/мин воды с высоты Н = 1,5 метра. Посмотрим, сколько воды он сможет поднять на высоту 9 метров. Отношению h/Н = 9/1,5 = 6 в таблице соответствует величина h/М =0,1. Это значит, что гидротаран ежеминутно должен подавать на высоту 9 метров массу воды m = 0,1-М =0,1-12= 1,2 литра. Это немного, но за сутки автоматическое устройство накачает свыше полутора тонн воды, количество, достаточное для поливки сада или огорода немалой площади.
*************************************************
Гидравлический таран, водоподъёмное устройство, в котором для подачи воды используется повышение в ней давления при периодически создаваемых гидравлических ударах. Г. т. был известен ещё в 18 в. Теория Г. т. была разработана Н. Е. Жуковским (1907). Одну из совершенных конструкций Г. т. предложил советский инженер Д. И. Трембовельский (1927).
В период разгона (рис.) при кратковременном открытии клапана 4 (вручную) в подводящей трубе 6 под действием подпора создаётся поток воды со средним расходом Q, который сбрасывается через этот клапан. Когда силовое воздействие воды уравновесит вес клапана, он поднимается. Быстрое закрытие клапана 4, а следовательно внезапная остановка воды, вызывает гидравлический удар. Резкое повышение давления открывает клапан 5, через который выходит некоторое количество воды со средним расходом q < Q. В рабочем периоде вода по трубопроводу 2 поступает в верхний бак 1, преодолев напор H > h. Сжатый воздух, находящийся в напорном колпаке 3, выравнивает подачу воды по трубопроводу. В конце второго периода давление в клапанной коробке становится немного меньше, поэтому клапан 5 закрывается, а клапан 4 открывается, что обеспечивает автоматическое повторение цикла. Кпд Г. т. зависит от напора и для соотношения

(рис.) равен 0,92, а для

составляет 0,26.
Г. т. применим там, где имеется запас воды, значительно превышающий потребное количество, и где есть возможность расположить установку ниже уровня источника. Получил распространение в сельском хозяйстве, для водоснабжения небольших строек и т.п.
Лит.: Чистопольский С. Д., Гидравлические тараны, М. — Л., 1936; Овсепян В. М., Гидравлический таран и таранные установки, М., 1968.
Схема гидравлического тарана: 1 — верхний бак; 2, 6 — трубопроводы; 3 — напорный колпак; 4, 5 — клапаны; 7 — резервуар; р — усилие, необходимое для открытия клапана; h — высота падения воды; Н — высота подъёма воды.
Гидравлический удар, явление резкого изменения давления в жидкости, вызванное мгновенным изменением скорости её течения в напорном трубопроводе (например, при быстром перекрытии трубопровода запорным устройством).
Увеличение давления при Г. определяется в соответствии с теорией Н. Е. Жуковского по формуле
Dp = r(v0 — v1) c,
где Dp — увеличение давления в н/м2, r — плотность жидкости в кг/м3, v0 и v1 — средние скорости в трубопроводе до и после закрытия задвижки в м/сек, с — скорость распространения ударной волны вдоль трубопровода. При абсолютно жёстких стенках с равна скорости звука в жидкости а (в воде а = 1400 м/сек). В трубах с упругими стенками

где D и d — диаметр и толщина стенок трубы, Е и e — модули упругости материала стенок трубы и жидкости.
Г. у. — сложный процесс образования упругих деформаций жидкости и их распространения по длине трубы. При очень большом увеличении давления Г. у. может вызывать аварии. Для их предупреждения на трубопроводе устанавливают предохранительные устройства (уравнительные резервуары, воздушные колпаки, вентили и др.).
Теория Г. у., развитая Н. Е. Жуковским, способствовала техническому прогрессу в гидротехнике, машиностроении и др. отраслях.
Лит.: Жуковский Н. Е., О гидравлическом ударе в водопроводных трубах, М. — Л., 1949; Мостков М. А., Башкирова А. А., Расчеты гидравлического удара, М. — Л., 1952.
В. В. Ляшевич